Huidige toestand
De Constant Rebecquekazerne bestond als gevolg van latere uitbreidingen uit drie bebouwingsclusters, die na de afstoting van de kazerne ieder een eigen bestemming kregen. Het oudste deel van de kazerne, het Boostensemble uit 1938-1939, huisvest vanaf 2013 de International School Eindhoven (ISE). Deze biedt plaats aan ongeveer 1100 leerlingen van 4 tot 18 jaar en geeft onderwijs in de Nederlandse en Engelse taal. Het betreft hier vooral kinderen van expats die in grote getale in en om Eindhoven wonen.
 |
|
Voor grotere weergave en toelichting klik hier. |
|
Dit deel werd verbouwd waarbij de status van rijksmonument gerespecteerd moest worden, wat aanpassingen aan de buitenzijden van de gebouwen beperkte en leidde tot het open houden van de appèlplaats. De drie legeringsgebouwen, het keuken-eetzaalgebouw en twee nieuwe gebouwen die hier ten westen en oosten van verrezen, zijn ondergronds met een grote corridor verbonden waarin de mediatheek is ondergebracht. Aan de achterzijde (noord) is een sporthal gebouwd.
De voormalige Duitse woningen en de officiersmess, gebouwnummers L,M, N, O en Q zijn afgescheiden van het deel van de ISE en huisvesten sinds 2017 BioArt Laboratories, dat zichzelf omschrijft als een: 'multidisciplinaire internationale organisatie met een focus op toptalent'. BioArt Laboratories biedt biedt faciliteiten, expertise en begeleiding aan kunstenaars en makers die soms moeizaam toegang krijgen tot nieuwe materialen en biotechnologische vindingen die door universiteiten en bedrijven worden ontwikkeld. Het laboratorium wordt ontsloten vanaf de westzijde met een eigen ingang. De hoofdingang van de ISE ligt daar niet ver vandaan en ontsluit het schoolterrein vanuit het westen.
Het derde cluster, het bedrijfsmatige deel van de voormalige kazerne met het lesgebouw, de garages en werkplaatsen is afgebroken. Heden ten dage valt hier niets anders te zien dan bomen, struiken en enige kleine waterpartijen.
Geschiedenis
De bouw van de kazerne startte in 1938, ingebruikname volgde op 17 april 1939 door het 1e bataljon van 17 Regiment Infanterie (I-17 RI). Lang profiteerde het Nederlandse leger niet van de kazerne en gedurende de oorlog, tot de bevrijding van Zuid-Nederland in september 1944, was hij in gebruik bij de Duitsers. De Luftwaffe huisvestte hier het personeel dat op vliegbasis Welschap (Fliegerhorst Eindhofen) werkte, waaronder de Fliegerhorst Kommandatur. De Duitsers voegden een zestal gebouwen toe aan de kazerne ten noordwesten van het oorspronkelijk ensemble. Dit betrof een officiersmess en vijf gebouwen ten bate van legering van officieren en de administratie. Deze uitbreiding werd later aangeduid als het 'Duitse Dorp' of als 'Duitse Woningen'. Het keukengebouw werd aangevuld met een eetzaal voor de manschappen.
Na de bevrijding tot eind 1947 werden er de 3e en 10e compagnie Aan- en Afvoertroepen (AAT) gelegerd. Vanuit Harderwijk kwam dat jaar de Rij- en Tractieschool (RTS) die na het vertrek van de AAT tot de afstoting van de kazerne de enige gebruiker zou zijn. De RTS, die onder de Inspecteur der Cavalerie ressorteerde, zette de traditie voort van de Rijschool van de cavalerie die in 1857 was opgericht. De vooroorlogse paarden waren vervangen door wiel- en rupsvoertuigen. Eindhoven was een gunstige locatie voor de RTS vanwege de nabijheid van DAF, wiens ontwikkelaars veelvuldig over de vloer kwamen bij de RTS. De Rijschool beschikte over alle bij de landmacht in gebruik zijnde rups- en wielvoertuigen, inclusief de bergingsvoertuigen. Op de RTS werden alle rij-instructeurs en examinatoren opgeleid die werkten op de rijscholen elders in het land.
De taak van de RTS volgens de organisatietabel en organisatiestaat (OTAS) van 1968 was het: 'verzorgen van rij- en onderhoudstechnische opleidingen cq. civiele vakopleidingen op motorvoertuigen'. Dit hield voor beroepspersoneel onder meer in de opleidingen voor: instructeur-examinator, rij- en onderhoudsinstructeur, de basisrijopleiding voor kadetten van de KMA en leerlingen van de KMS, en aanvullende opleidingen voor bergingsvoertuigen. Voor technisch specialisten (TS) de opleiding tot korporaal rij- en onderhoudsinspecteur. Voor dienstplichtigen: rij- en bergingsopleidingen voor monteurs rupsvoertuigen en bergingsopleidingen ten bate van alle wapens. In de OTAS van 1981 was ook de basisopleiding rij- en onderhoudsinspecteur van alle krijgsmachtdelen opgenomen.
| |
 |
| |
Voor een grotere weergave klik hier. |
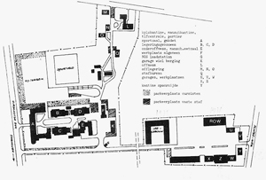
Ten bate van de RTS volgde een uitbreiding van het kazerneterrein met werkplaatsen, garages en lesgebouwen te noorden van het ensemble uit 1938. Het terrein ten westen van het oudste kazernedeel was het zogenaamde 'zijterrein', dat werd gebruikt voor het oefenen met wielvoertuigen voor het 'klein werk'. Behalve een doorwaadbak waren hier ook een hoge en lage Baileybrug voor het oefenen van de hellingproef en demonstraties van de differentieelwerking. Oefenen met rupsvoertuigen vond voornamelijk plaats in het terrein naast de Legerplaats Oirschot en voor lichte rupsvoertuigen ook op de achtbaan ('de krakeling') van het Pantserinfanterie Rijopleidingscentrum (PIROC) in Veldhoven.
In 1981 bedroeg de personeelssterkte 320 man. De gelijktijdige capaciteit van de opleidingen bedroeg 440 leerlingen, wat ook de legeringscapaciteit voor cursisten was. De duur van de opleidingen en cursussen varieerde sterk, de jaarcapaciteit was ongeveer 2000 man. In gebouw C waren de bureaus van het Rupseskadron en legering van hun cursisten. In gebouw D de bureaus van het Wieleskadron en de legeringskamers voor hun cursisten. Gebouw B huisvestte de bureaus van het Stafeskadron en ook de slaapzalen van het 'binnen wonende' personeel: beroeps en dienstplichtig. De binnen wonende officieren van de vaste staf en de officieren cursist waren gelegerd in de gebouwen M, N en O tegenover de officiersmess.
De kazerne kwam in de loop der jaren meer dan eens in het nieuws als doelwit van activisten. Zo werd in 1971 na insluiping getracht een drietonner in brand te steken die in een loods vol voertuigen stond. In de jaren tachtig lukte het de bekende vredesactivist Kees Koning met anderen de banden van een twintigtal viertonners lek te steken en leuzen te kladderen op muren en dekzeilen. Koning werd een keer gepakt tijdens insluiping en overgedragen aan de marechaussee. De dag erna meldde hij zich aan de poort met het verzoek of hij zijn fiets kon terugkrijgen. De wacht haalde de fiets en overhandigde hem aan Koning, met twee lekke banden.
Na het einde van de Koude Oorlog volgde een herstructurering van de landmacht, de rijopleidingen vielen uiteindelijk onder het Opleidings- en trainingscentrum Rijden (OCTRIJ) in Oirschot, daarmee kwam in 1993 ook een einde aan de RTS in Eindhoven. Die werd sterk ingekrompen en verplaatst naar de Bernhardkazerne in Amersfoort. De opleiding daar was (en is) alleen voor tanks en pantserhouwitsers.
Defensie sloot in 1996 de kazerne definitief waarna deze leeg kwam te staan tot er in 1998 op een deel van het terrein een asielzoekerscentrum werd gevestigd. Een ongebruikt deel werd in 2000 gekraakt door rechts-extremisten. De Constant Rebecquekazerne kreeg landelijke bekendheid toen de krakers in november 2003 een rockconcert op het kazerneterrein organiseerden. Het concert trok politiek gelijkgestemde zielen uit België en Duitsland, waarna vragen werden gesteld in de Tweede Kamer. Ook de plaatselijke politiek was het zat. De ophef die was ontstaan leidde twee weken na het concert tot het vrijwillig vertrek van de krakers. Om nieuwe kraakpogingen te verhinderen nam Defensie, die nog steeds de eigenaar was, maatregelen.
In de periode hierna kregen de plannen om er een internationale school te vestigen hun weerslag en wind in de zeilen toen de rijksoverheid in juni 2008 een bijdrage van € 7.000.000 toezegde. De uitgangspunten voor de verbouwing en nieuwbouw waren een balans tussen duurzaamheid, comfortwensen en de monumentale waarde van het ensemble. Dit slaagde zo goed, dat het project een BREEAM 'Good' certificering ontving. Het project startte in 2010, de school werd in 2013 in gebruik genomen.
De naamgever
 |
|
Jean Victor de Constant Rebecque werd op 22 september 1773 te Genève geboren en zou een uiterst veelzijdig militair leven kennen. Op dertienjarige leeftijd ging hij naar Colmar (F) om een militaire voorbereidingscursus te volgen. Vlak voor zijn vijftiende verjaardag werd hij benoemd tot tweede luitenant in het garnizoen van Nancy. Daarmee maakte hij deel uit van het koninklijke, pre-revolutionaire Franse leger. Tijdens de Franse revolutie vocht hij aan de kant van de koningsgetrouwe troepen en moest Frankrijk in 1789 ontvluchtten. Hij diende enige tijd in Genève en trad in 1794 in dienst van de Republiek der Nederlanden. Nadat de Republiek in 1795 was overrompeld door het Franse leger, weigerde hij dienst te nemen in het leger van de Bataafse Republiek en week uit naar Pruisen. In 1805 werd hij benoemd tot gouverneur van de Prins van Oranje, de latere koning Willem II, die in Oxford studeerde. Met hem trok hij met het Britse leger van Wellington naar Spanje en was betrokken bij diverse belegeringen en veldslagen. Voor zijn verdiensten werd hij benoemd tot luitenant-kolonel van het legioen Holland-Oranje.
Na het herkrijgen van de onafhankelijkheid van de vroegere Republiek en het latere België eind 1813, werd de Constant Rebecque bevorderd tot kolonel in het leger van het Koninkrijk der Verenigde Nederlanden, en niet veel later tot generaal-majoor. Hij speelde een grote rol in de slag bij Waterloo in 1815 toen hij een wijziging aanbracht in de door Wellington uitgevaardigde orders. In 1816 werd hij bevorderd tot luitenant-generaal. Tijdens de afscheidingsoorlog van de Belgen diende hij als chef-staf van het Hollandse leger tijdens de Tiendaagse Veldtocht. De Constant Rebecque vroeg en kreeg in 1837 ontslag uit militaire dienst en bracht de rest van zijn leven door in Schönfeld (Silezië, D). Hij had als militair vele onderscheidingen verworven, waaronder die van Commandeur in de Militaire Willemsorde, en werd in 1847 opgenomen in de Nederlandse adel met de titel van baron. Hij overleed op 12 juni 1850.
Overig
De kazerne is een van de twaalf grensbataljonkazernes die in de periode 1938-1940 werd gebouwd naar een ontwerp van kapitein der genie A.G. Boost. Het hoofdgebouw (A), de drie legeringsgebouwen (B, C en D) en het keuken-eetzaalgebouw (E) hebben de rijksmonumentstatus. De Duitse Woningen hebben geen monumentstatus, maar zijn architectonisch interessant vanwege hun boerderijachtige uiterlijk in de zogenaamde Heimatstil, hun halve meter dikke muren en stalen luiken. Ook de uitbreiding van het keukengebouw is in deze stijl.
|